3階は現在募集がありません
タカコービル 3階
物件概要
タカコービルのテナント募集中区画
現在、空室がございません。
アクセス
タカコービルの物件情報
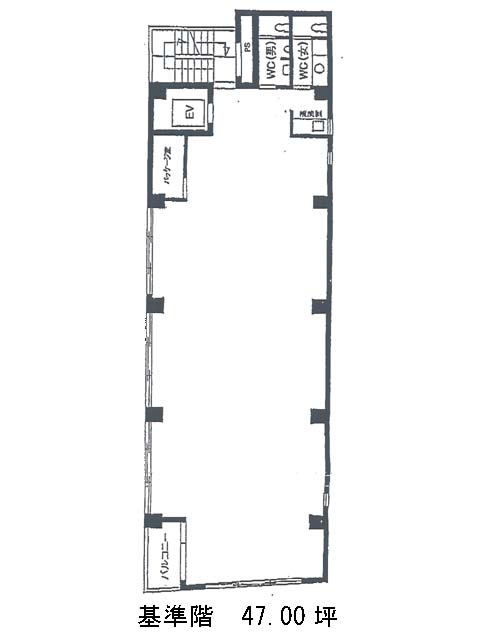
タカコービル(中央区日本橋本町)は新日本橋駅(8番出口)から徒歩3分の賃貸オフィスです。1986年竣工、鉄骨鉄筋コンクリート造の地上9階建ての物件です。外観は、全体的に白を基調としたタイル張りで、とても明るく清潔感のある印象です。基準階は47坪あり、室内は長方形の形をしているので、レイアウトはしやすいでしょう。設備面は、OAフロアを備えており、男女別トイレ、エレベーターは1基設置、セキュリティは機械警備システムを導入しています。また周辺には、コンビニや銀行、郵便局などがありとても利便性が高いでしょう。タカコービルは新日本橋駅(8番出口)の他に小伝馬町駅(3番出口)徒歩3分、三越前駅(A10番出口)徒歩7分で利用も可能です。

