7階は現在募集がありません
リーラック第一ビル 7階
物件概要
リーラック第一ビルのテナント募集中区画
現在、空室がございません。
アクセス
リーラック第一ビルの物件情報
リーラック第一ビル(中央区日本橋蛎殻町)は水天宮前駅(3番出口)から徒歩5分の賃貸オフィスです。曲線を活かした外観と濃茶のタイルが目を引く、デザイン性の高い建物。周囲は住宅やオフィスが混在する落ち着いた環境で、穏やかに過ごせる立地です。
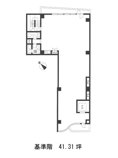
基準階は約41坪。柱は外周に配置され、室内はシンプルなL字型。レイアウトの自由度が高く、ゾーニングや動線計画もしやすい造りです。室内には男女別トイレが備わり、働く人にとっての快適性にも配慮されています。
1フロア1テナントのため、フロア専有感が高く、セキュリティ面の安心材料にもなるでしょう。リーラック第一ビルは水天宮前駅(3番出口)の他に茅場町駅(4A番出口)徒歩6分、人形町駅(A2番出口)徒歩8分で利用も可能です。

