19階は現在募集がありません

(仮称)住友不動産中野駅前プロジェクト 19階

前の写真 次の写真

物件概要

物件番号

682-00151-1

物件名

(仮称)住友不動産中野駅前プロジェクト

所在地

面積

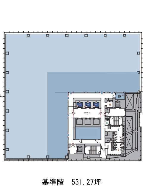
531.27坪

賃料(共益費含)


入居日

募集終了

保証金

礼金

更新料

償却費

竣工

2024年2月

構造

S造

規模

地上20階/地下2階

トイレ

男女別

空調

エレベーター

セキュリティ

駐車場

耐震

新耐震基準

基準階天井高

空室延床面積

最寄駅

情報更新日

2024/02/29

(仮称)住友不動産中野駅前プロジェクトのテナント募集中区画

現在、空室がございません。

アクセス

(仮称)住友不動産中野駅前プロジェクトの物件情報

(仮称)住友不動産中野駅前プロジェクト(中野区中野)は中野駅(南口)から徒歩2分の賃貸オフィスです。
2024年2月竣工、地上20階地下2階建てS造免震構造のビルです。低層部の流れるように波打つ外壁が特徴的です。基準階面積は約530坪あり大規模な企業様にも良いでしょう。フロアの1箇所に共用部が集まり、動線に配慮されています。EV・駐車場(平置き14台・機械式100台)・OAフロア・完全個別空調・多目的トイレ全フロア設置といった設備仕様があります。天井高3000㎜で明るく開放感のある室内になるでしょう。
(仮称)住友不動産中野駅前プロジェクトは中野駅(南口)の他に新中野駅(2番出口)徒歩13分で利用も可能です。

近隣のエリア・駅から探す