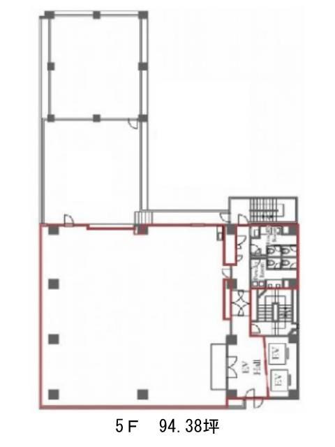
5階は現在募集がありません
MEGURO VILLA GARDEN 5階
物件概要
MEGURO VILLA GARDENのテナント募集中区画
現在、空室がございません。
アクセス
MEGURO VILLA GARDENの物件情報
MEGURO VILLA GARDEN(品川区上大崎)は目黒駅(東口)から徒歩6分の賃貸オフィスです。首都高沿いの角地に位置しています。1992年2月竣工、地上8階・地下1階建ての鉄骨鉄筋コンクリート造です。ウッド調のタイルと白タイルの2色配置の外観が特徴的でおしゃれな印象です。エントランスやお手洗いも外観同様、ウッド調に統一されており、明るく、ホテルのような高級感が漂います。設備面としては、個別空調、OAフロア、男女別トイレ、エレベーターは2基設置。駐車場も併設されており、車の利用もしやすい環境です。東京都庭園美術館も近くにあり、緑を身近に感じることの出来るデザイナーズオフィスです。MEGURO VILLA GARDENは目黒駅(東口)の他に白金台駅(1番出口)徒歩10分、五反田駅(A4番出口)徒歩14分で利用も可能です。

