2階は現在募集がありません
斎藤ビル 2階
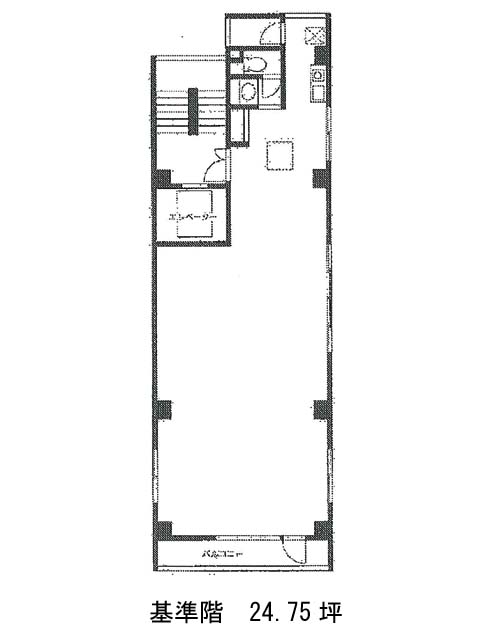
物件概要
斎藤ビルのテナント募集中区画
現在、空室がございません。
アクセス
斎藤ビルの物件情報
斎藤ビル(品川区東五反田)は五反田駅(出口)から徒歩5分の賃貸オフィスです。斎藤ビルは五反田駅(出口)の他に大崎広小路駅(出口)徒歩9分、大崎駅(東口)徒歩10分で利用も可能です。

