イワハナビル 2階
物件概要
物件番号
79-00014-20物件名
イワハナビル所在地
- 東京都江東区亀戸1-32-8
- アクセスマップ
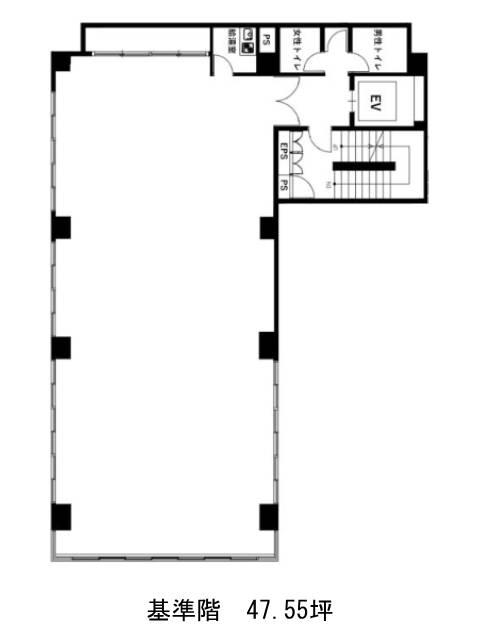
面積
47.55坪賃料(共益費含)
月額679,965円(14,300円/坪)
入居日
相談保証金
3,708,900円礼金
なし更新料
新1ケ月償却費
なし竣工
1991年4月構造
SRC規模
地上9階トイレ
男女別空調
個別空調エレベーター
有セキュリティ
駐車場
無耐震
新耐震基準基準階天井高
2545mm空室延床面積
47.55坪情報更新日
2025/08/25イワハナビルのテナント募集中区画
| 階数 | 面積 | 賃料(共益費含む) | 保証金 | 入居可能日 | 検討リスト | 詳細 |
|---|---|---|---|---|---|---|
| 2 | 47.55坪 | 679,965円/月(14,300円/坪) | 370万円 | 相談 |
…新着物件
アクセス
イワハナビルの物件情報
イワハナビル(江東区亀戸)は亀戸駅(北口)から徒歩5分の賃貸オフィスです。イワハナビルは亀戸駅(北口)の他に西大島駅(A3番出口)徒歩9分で利用も可能です。

