5階は現在募集がありません
1フロア募集区画あり

イワハナビル 5階

前の写真 次の写真

物件概要

物件番号

79-00014-50

物件名

イワハナビル

所在地

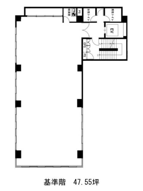
面積

47.55坪

賃料(共益費含)


入居日

募集終了

保証金

礼金

更新料

償却費

竣工

1991年4月

構造

SRC

規模

地上9階

トイレ

男女別

空調

個別空調

エレベーター

セキュリティ

駐車場

耐震

新耐震基準

基準階天井高

2545mm

空室延床面積

47.55坪

最寄駅

情報更新日

2025/08/25

イワハナビルのテナント募集中区画

階数 面積 賃料(共益費含む) 保証金 入居可能日 検討リスト 詳細
2 47.55坪 679,965円/月(14,300円/坪) 370万円 相談
…新着物件

アクセス

イワハナビルの物件情報

イワハナビル(江東区亀戸)は亀戸駅(北口)から徒歩5分の賃貸オフィスです。
イワハナビルは亀戸駅(北口)の他に西大島駅(A3番出口)徒歩9分で利用も可能です。

近隣のエリア・駅から探す