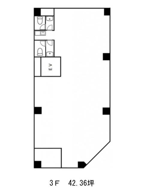
3階は現在募集がありません
ナッシュビル 3階
物件概要
ナッシュビルのテナント募集中区画
現在、空室がございません。
アクセス
ナッシュビルの物件情報
ナッシュビル(江東区高橋)は森下駅(A7番出口)から徒歩3分の賃貸オフィスです。ナッシュビルは森下駅(A7番出口)の他に清澄白河駅(A1番出口)徒歩4分、菊川駅(A2番出口)徒歩11分で利用も可能です。

