4階は現在募集がありません
永代O.T.ビル 4階
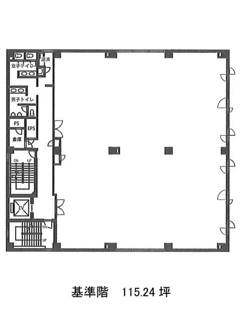
物件概要
永代O.T.ビルのテナント募集中区画
現在、空室がございません。
アクセス
永代O.T.ビルの物件情報
永代O.T.ビル(江東区佐賀)は門前仲町駅(出口)から徒歩10分の賃貸オフィスです。永代O.T.ビルは門前仲町駅(出口)の他に水天宮前駅(2番出口)徒歩11分、茅場町駅(4B番出口)徒歩13分で利用も可能です。

