1-2は現在募集がありません
WGビル 1-2
物件概要
物件番号
844-00036-1物件名
WGビル所在地
- 東京都墨田区横川2-1-9
- アクセスマップ
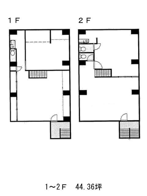
面積
44.36坪賃料(共益費含)
−入居日
募集終了保証金
−礼金
−更新料
−償却費
−竣工
1963年1月構造
S造規模
地上4階トイレ
男女別空調
エレベーター
有セキュリティ
駐車場
無耐震
旧耐震基準基準階天井高
空室延床面積
−最寄駅
- 錦糸町駅
- 徒歩10分
- 押上駅
- 徒歩10分
- とうきょうスカイツリー駅
- 徒歩15分
- 本所吾妻橋駅
- 徒歩16分
情報更新日
2023/09/28WGビルのテナント募集中区画
現在、空室がございません。
アクセス
WGビルの物件情報
WGビル(墨田区横川)は錦糸町駅(出口2)から徒歩10分の賃貸オフィスです。WGビルは錦糸町駅(出口2)の他に押上駅(B1番出口)徒歩10分、とうきょうスカイツリー駅(出口1)徒歩15分で利用も可能です。

