2階は現在募集がありません
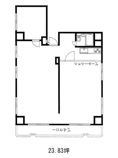
ダイアパレス錦糸町第2 2階
物件概要
ダイアパレス錦糸町第2のテナント募集中区画
現在、空室がございません。
アクセス
ダイアパレス錦糸町第2の物件情報
ダイアパレス錦糸町第2(墨田区亀沢)は両国駅(A3番出口)から徒歩11分の賃貸オフィスです。ダイアパレス錦糸町第2は両国駅(A3番出口)の他に錦糸町駅(北口)徒歩12分、菊川駅(A3番出口)徒歩13分で利用も可能です。

