3階は現在募集がありません
マーベラス菊川ビル 3階
物件概要
マーベラス菊川ビルのテナント募集中区画
現在、空室がございません。
アクセス
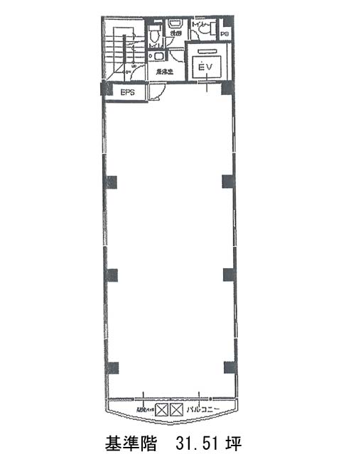
マーベラス菊川ビルの物件情報
マーベラス菊川ビル(墨田区菊川)は菊川駅(A1番出口)から徒歩1分の賃貸オフィスです。マーベラス菊川ビルは菊川駅(A1番出口)の他に森下駅(A6番出口)徒歩10分、住吉駅(A2番出口)徒歩12分で利用も可能です。

