5階は現在募集がありません
Crobis錦糸町 5階
物件概要
Crobis錦糸町のテナント募集中区画
現在、空室がございません。
アクセス
Crobis錦糸町の物件情報
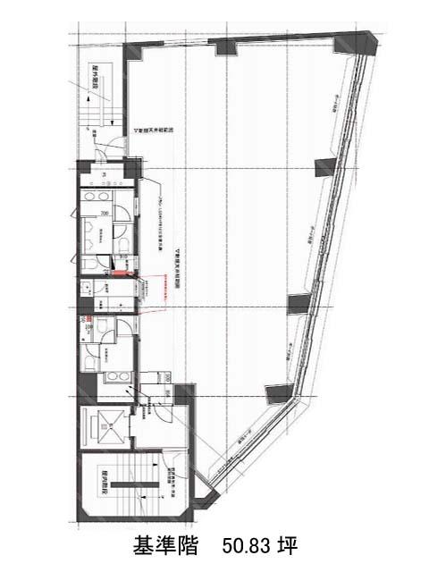
Crobis錦糸町(墨田区江東橋)は錦糸町駅(出口1)から徒歩5分の賃貸オフィスです。地上8階建て、京葉道路の交差点に位置します。竣工は1979年ですが、2020年にリノベーション工事を完了しています。外観はモノトーンで統一した高級感のあるデザインで、角地に建っていることもあり視認性良好です。基準階面積は約51坪、室内は特徴的な形ですが、空間を遮る柱はありません。エレベーターや水回りなどの共用部は室外に配置されています。設備面は個別空調、OAフロア、男女別トイレを完備し、機械警備でセキュリティも安心です。周辺は見通しが良く、近くにバス停があります。また駅周辺には豊富な飲食店や店舗、複数の金融機関がありますので、お仕事にもオフにも利便性が高いでしょう。Crobis錦糸町は錦糸町駅(出口1)の他に住吉駅(B2番出口)徒歩12分、亀戸駅(北口)徒歩12分で利用も可能です。

