4階は現在募集がありません
KDビル 4階
物件概要
KDビルのテナント募集中区画
現在、空室がございません。
アクセス
KDビルの物件情報
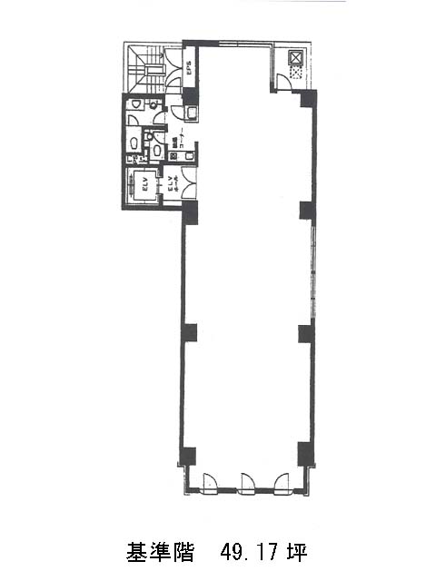
KDビル(墨田区江東橋)は錦糸町駅(南口)から徒歩4分の賃貸オフィスです。1994年竣工、国道14号線沿いに建つ地上9階建てです。ブラックで統一されたスリムな外観で、入り口からエレベータホールにかけて重厚な御影石がたっぷり使用されています。基準階面積は約49坪、貸室は長方形の無柱整形オフィスで、共用部を室外にまとめた効率的な間取りです。空調は個別空調で、24時間の使用が可能です。また、セキュリティは機械警備を導入していますので安心です。ビルの並びに郵便局があり、駅周辺には飲食店や商業施設も充実していますので、お仕事にもランチタイムにも利便性が高いでしょう。

