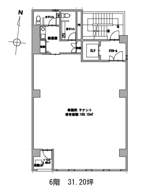
6階は現在募集がありません
昭和第1ビル 6階
物件概要
昭和第1ビルのテナント募集中区画
現在、空室がございません。
アクセス
昭和第1ビルの物件情報
昭和第一ビル(墨田区江東橋)は錦糸町駅(南口)から徒歩5分の賃貸オフィスです。昭和第一ビルは錦糸町駅(南口)の他に住吉駅(B2番出口)徒歩14分、菊川駅(A3番出口)徒歩15分で利用も可能です。

