2階 新2は現在募集がありません
KN代官山ビル 2階 新2
物件概要
KN代官山ビルのテナント募集中区画
現在、空室がございません。
アクセス
KN代官山ビルの物件情報
KN代官山ビル(目黒区中目黒)は代官山駅(正面口)から徒歩4分の賃貸オフィスです。
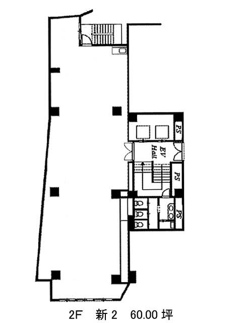
1972年竣工、地上10階地下2階建てビルです。無柱空間の室内は機器やデスクのレイアウトがしやすいでしょう。EV2基・駐車場・個別空調・非常階段1箇所・OAフロア・男女別トイレといった充実の設備仕様をしています。セキュリティは機械警備が導入されています。2013年に大規模リニューアルが実施されており、築年数を感じさせない清潔感を保っています。三面採光で明るい室内になるでしょう。
KN代官山ビルは代官山駅(正面口)の他に中目黒駅(出口)徒歩7分、恵比寿駅(5番出口)徒歩7分で利用も可能です。

