6階は現在募集がありません
ACN東麻布ビル 6階
物件概要
ACN東麻布ビルのテナント募集中区画
現在、空室がございません。
アクセス
ACN東麻布ビルの物件情報
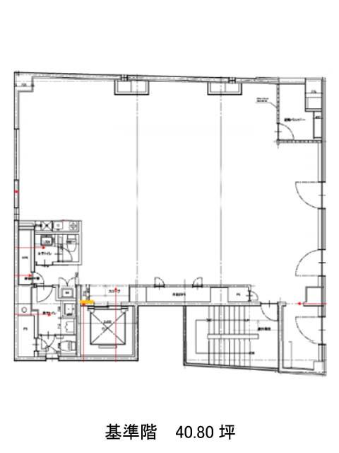
ACN東麻布ビル(港区東麻布)は赤羽橋駅(赤羽橋口)から徒歩4分の賃貸オフィスです。1989年竣工。外観は全体的にグレーを基調とした色合いで、とてもシンプルなデザインとなっております。エレベーターは1基設置。基準階は約40坪あり、室内には余計な柱が少ないため、比較的レイアウトは組みやすいでしょう。ビル内には個別空調が完備されており、トイレも男女別となっております。耐震性も新耐震基準であるため、安心です。また周辺にはコンビニや飲食店などが複数あるため、ランチも楽しめるでしょう。ACN東麻布ビルは赤羽橋駅(赤羽橋口)の他に芝公園駅(A4番出口)徒歩9分、神谷町駅(2番出口)徒歩10分で利用も可能です。

