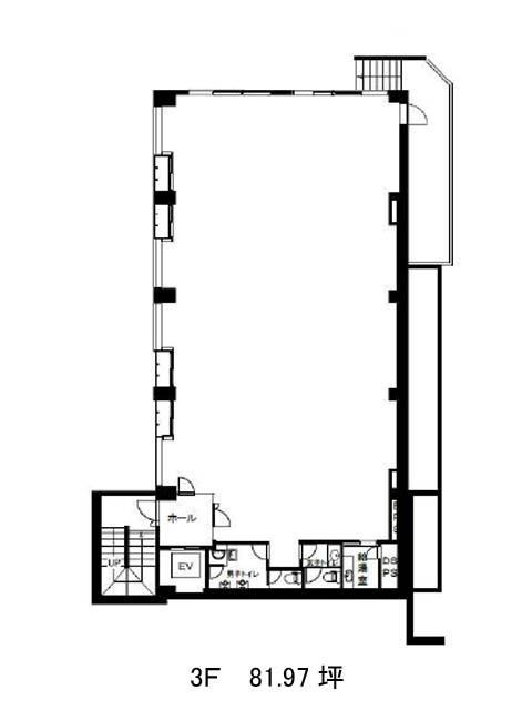
3階は現在募集がありません
愛宕THビル 3階
物件概要
愛宕THビルのテナント募集中区画
現在、空室がございません。
アクセス
愛宕THビルの物件情報
愛宕THビル(港区愛宕)は虎ノ門ヒルズ駅(A1番出口)から徒歩6分の賃貸オフィスです。外観はベージュを基調とした、お洒落な洋館の一軒家のような雰囲気があります。室内は長方形の整形オフィスのため、お客様に合わせた効率の良いレイアウトが組めそうです。ビル内のトイレは男女別となっており、駐車場もあるため、社用車を使う場合も便利です。セキュリティは機械警備を導入しており、耐震性も新耐震基準であるため、安心できます。また周辺にはコンビニや飲食店、郵便局などが複数あるため、とても利便性が高いです。愛宕THビルは虎ノ門ヒルズ駅(A1番出口)の他に虎ノ門駅(B6番出口)徒歩10分、御成門駅(A5番出口)徒歩10分で利用も可能です。

