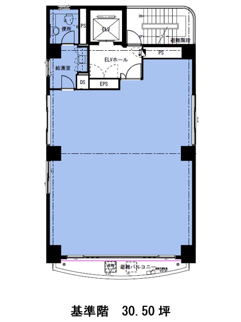
7階は現在募集がありません
神谷町アネックス 7階
物件概要
神谷町アネックスのテナント募集中区画
現在、空室がございません。
アクセス
神谷町アネックスの物件情報
神谷町アネックス(港区虎ノ門)は神谷町駅(4A番出口)から徒歩2分の賃貸オフィスです。神谷町アネックスは神谷町駅(4A番出口)の他に虎ノ門ヒルズ駅(A1番出口)徒歩8分、六本木一丁目駅(2番出口)徒歩9分で利用も可能です。

