2階は現在募集がありません

SVAX・TTビル 2階

前の写真 次の写真

物件概要

物件番号

122-00142-231

物件名

SVAX・TTビル

所在地

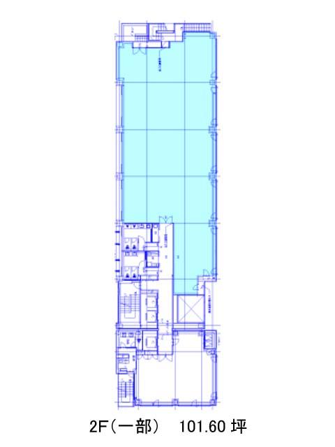
面積

101.60坪

賃料(共益費含)


入居日

募集終了

保証金

礼金

更新料

償却費

竣工

1987年8月

構造

規模

地上9階/地下2階

トイレ

男女別

空調

個別空調

エレベーター

セキュリティ

駐車場

耐震

新耐震基準

基準階天井高

2420mm

空室延床面積

最寄駅

情報更新日

2025/07/07

SVAX・TTビルのテナント募集中区画

現在、空室がございません。

アクセス

SVAX・TTビルの物件情報

SVAX・TTビル(港区虎ノ門)は虎ノ門ヒルズ駅(A1番出口)から徒歩3分の賃貸オフィスです。
1987年竣工、地上9階・地下2階建てのオフィスビルです。外観は全体的にグレーを基調とした色合いで、ほぼ全面がガラス張りになっているため、とても存在感があり綺麗です。また周辺にはコンビニや飲食店などが複数あるため、ランチも楽しめるでしょう。ビル内にはOAフロアが備えられており、トイレは男女別となっております。駐車場もあるため、社用車を使う場合も便利です。基準階は約160坪あり、室内は長方形の整形オフィスのため、効率の良いレイアウトが組めそうです。
SVAX・TTビルは虎ノ門ヒルズ駅(A1番出口)の他に神谷町駅(3番出口)徒歩4分、虎ノ門駅(2a番出口)徒歩8分で利用も可能です。

近隣のエリア・駅から探す