櫻ビル 3階
物件概要
物件番号
122-00213-67物件名
櫻ビル所在地
- 東京都港区虎ノ門2-5-5
- アクセスマップ
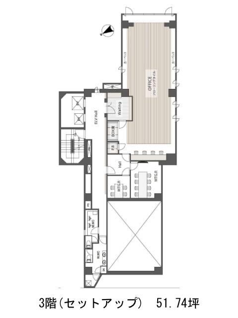
面積
51.74坪賃料(共益費含)
月額1,195,194円(23,100円/坪)
入居日
即保証金
8,795,800円礼金
なし更新料
新1ケ月償却費
なし竣工
1973年構造
SRC規模
地上10階/地下1階トイレ
男女別空調
個別空調エレベーター
有セキュリティ
有駐車場
有耐震
耐震補強済み基準階天井高
空室延床面積
103.06坪情報更新日
2025/10/09櫻ビルのテナント募集中区画
| 階数 | 面積 | 賃料(共益費含む) | 保証金 | 入居可能日 | 検討リスト | 詳細 |
|---|---|---|---|---|---|---|
| 2 | 51.32坪 | 1,185,492円/月(23,100円/坪) | 872万円 | 即 | ||
| 3 | 51.74坪 | 1,195,194円/月(23,100円/坪) | 879万円 | 即 |
…新着物件
アクセス
櫻ビルの物件情報
櫻ビル(港区虎ノ門)は虎ノ門ヒルズ駅(B1番出口)から徒歩3分の賃貸オフィスです。櫻ビルは虎ノ門ヒルズ駅(B1番出口)の他に虎ノ門駅(2a番出口)徒歩3分、霞ケ関駅(A13番出口)徒歩7分で利用も可能です。

