3階は現在募集がありません
2フロア募集区画あり
ザイマックス神谷町ビルディング/TRANS神谷町ビル 3階
物件概要
物件番号
122-00293-30物件名
ザイマックス神谷町ビルディング/TRANS神谷町ビル所在地
- 東京都港区虎ノ門5-12-13
- アクセスマップ
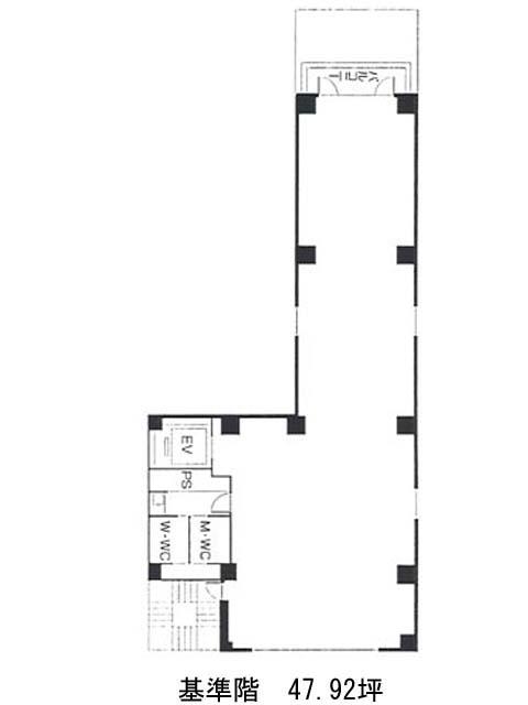
面積
47.92坪賃料(共益費含)
−入居日
募集終了保証金
−礼金
−更新料
−償却費
−竣工
1991年4月構造
S造規模
地上8階トイレ
男女別空調
個別空調エレベーター
有セキュリティ
有駐車場
無耐震
新耐震基準基準階天井高
2600mm空室延床面積
95.84坪情報更新日
2025/11/18ザイマックス神谷町ビルディング/TRANS神谷町ビルのテナント募集中区画
| 階数 | 面積 | 賃料(共益費含む) | 保証金 | 入居可能日 | 検討リスト | 詳細 |
|---|---|---|---|---|---|---|
| 2 | 47.92坪 | 1,475,936円/月(30,800円/坪) | 268万円 | 即 | ||
| 6 | 47.92坪 | 1,475,936円/月(30,800円/坪) | 268万円 | 即 |
…新着物件
アクセス
ザイマックス神谷町ビルディング/TRANS神谷町ビルの物件情報
ザイマックス神谷町ビルディング/TRANS神谷町ビル(港区虎ノ門)は神谷町駅(1番出口)から徒歩1分の賃貸オフィスです。ザイマックス神谷町ビルディング/TRANS神谷町ビルは神谷町駅(1番出口)の他に虎ノ門ヒルズ駅(A1番出口)徒歩7分、御成門駅(A5番出口)徒歩9分で利用も可能です。

