4階は現在募集がありません
ヒューリック神谷町ビル 4階
物件概要
物件番号
122-00003-211物件名
ヒューリック神谷町ビル所在地
- 東京都港区虎ノ門4-3-13
- アクセスマップ
面積
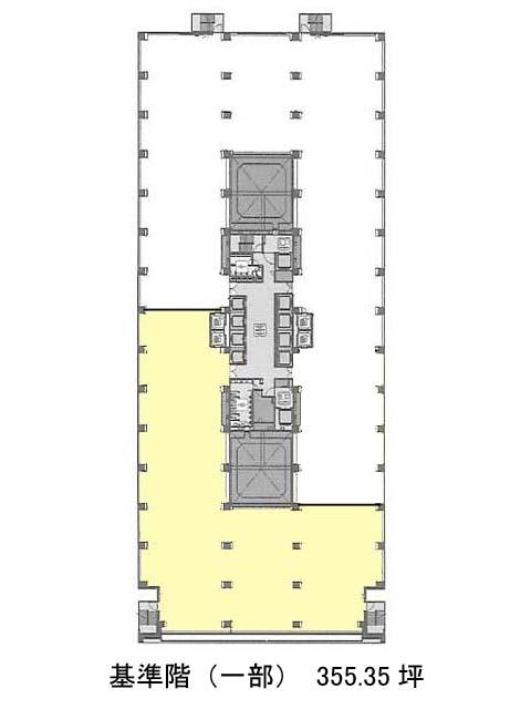
355.35坪賃料(共益費含)
−入居日
募集終了保証金
−礼金
−更新料
−償却費
−竣工
1985年4月構造
SRC規模
地上11階/地下2階トイレ
男女別空調
セントラル+個別空調エレベーター
有セキュリティ
駐車場
有耐震
新耐震基準基準階天井高
2600mm空室延床面積
−情報更新日
2025/10/02ヒューリック神谷町ビルのテナント募集中区画
現在、空室がございません。
アクセス
ヒューリック神谷町ビルの物件情報
ヒューリック神谷町ビル(港区虎ノ門)は神谷町駅(4B番出口)から徒歩3分の賃貸オフィスです。1フロア最大約940坪の大型物件です。神谷町駅から程近い立地ですが、周辺は植樹が多く施されており緑豊かな環境です。お仕事の合間に森林浴をすると良いリフレッシュになりそう。1階部分ではコンビニが営業中で、特にお昼時はオフィスワーカーで賑わっています。
貸室はフロアや募集の時期によって分割区画がございます。男女別トイレ、給湯室などの共有部分はフロアの中心に集約されており、執務室は共有部分を囲うかたちで構成されています。
セキュリティゲート、有人警備などによりオフィスの安全性がしっかりと保たれていますので、安心してお仕事をして頂けるでしょう。ヒューリック神谷町ビルは神谷町駅(4B番出口)の他に虎ノ門ヒルズ駅(A1番出口)徒歩8分、六本木一丁目駅(3番出口)徒歩10分で利用も可能です。

