6階は現在募集がありません
プライムテラス神谷町 6階
物件概要
プライムテラス神谷町のテナント募集中区画
現在、空室がございません。
アクセス
プライムテラス神谷町の物件情報
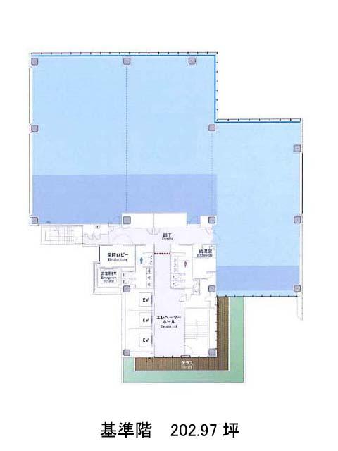
プライムテラス神谷町(港区虎ノ門)は神谷町駅(4B番出口)から徒歩3分の賃貸オフィスです。2020年竣工、地上10階・地下1階建ての鉄骨造です。デザイン性に優れた外観で視認性も抜群です。ガラス張りのエントランスは採光良好で明るく、広々としており高級感を感じさせます。基準階面積は約200坪強あり、主な設備面としてはOAフロア、男女別トイレ、機械警備導入、個別空調、駐車場も併設しています。敷地内に緑が多く、屋上もあるので、休憩時間に活用できそうです。周辺にはコンビニや飲食店が複数点在しており、銀行や郵便局もあるのでオフィス環境としての利便性も高いでしょう。プライムテラス神谷町は神谷町駅(4B番出口)の他に虎ノ門ヒルズ駅(A1番出口)徒歩8分、六本木一丁目駅(3番出口)徒歩9分で利用も可能です。

