7階は現在募集がありません
虎ノ門八束ビル 7階
物件概要
虎ノ門八束ビルのテナント募集中区画
現在、空室がございません。
アクセス
虎ノ門八束ビルの物件情報
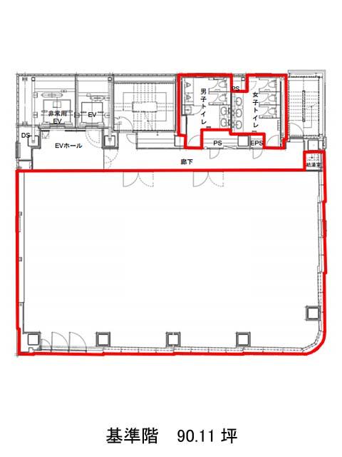
虎ノ門八束ビル(港区虎ノ門)は虎ノ門ヒルズ駅(A1番出口)から徒歩4分の賃貸オフィスです。2021年竣工、 地上9階・地下1階建ての物件です。桜田通りに面しており視認性も高いでしょう。外観は全体的にグレーを基調とした色合いで、全面ガラス張りになっているため、とても美しくスタイリッシュな印象があります。エントランスホールやエレベーターホールはとても広々としており、開放感があります。また周辺にはコンビニや飲食店、郵便局、銀行などが複数あるためとても利便性が高いです。ビル内の主な設備は、OAフロア、個別空調、男女別トイレ、機械警備完備です。虎ノ門八束ビルは虎ノ門ヒルズ駅(A1番出口)の他に神谷町駅(4A番出口)徒歩4分、虎ノ門駅(2a番出口)徒歩8分で利用も可能です。

