5階は現在募集がありません
伊藤佑ビル虎ノ門 5階
物件概要
伊藤佑ビル虎ノ門のテナント募集中区画
現在、空室がございません。
アクセス
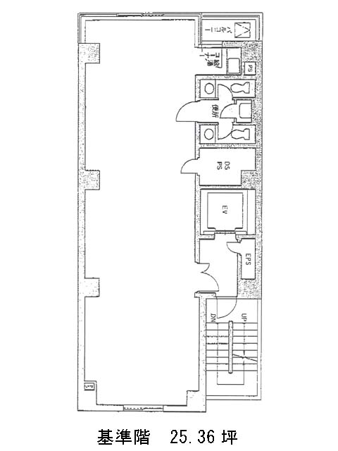
伊藤佑ビル虎ノ門の物件情報
伊藤佑ビル虎ノ門(港区虎ノ門)は神谷町駅(3番出口)から徒歩3分の賃貸オフィスです。伊藤佑ビル虎ノ門は神谷町駅(3番出口)の他に御成門駅(A5番出口)徒歩7分、虎ノ門ヒルズ駅(A1番出口)徒歩8分で利用も可能です。

