6階は現在募集がありません
クレッセント虎ノ門 6階
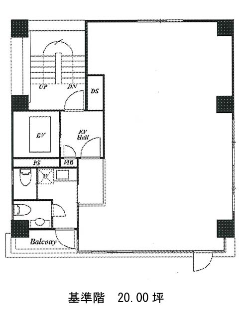
物件概要
クレッセント虎ノ門のテナント募集中区画
現在、空室がございません。
アクセス
クレッセント虎ノ門の物件情報
クレッセント虎ノ門(港区虎ノ門)は神谷町駅(4A番出口)から徒歩2分の賃貸オフィスです。クレッセント虎ノ門は神谷町駅(4A番出口)の他に虎ノ門ヒルズ駅(A1番出口)徒歩5分、虎ノ門駅(2a番出口)徒歩9分で利用も可能です。

