6階は現在募集がありません
UD神谷町ビル 6階
物件概要
UD神谷町ビルのテナント募集中区画
現在、空室がございません。
アクセス
UD神谷町ビルの物件情報
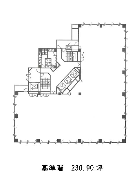
UD神谷町ビル(港区虎ノ門)は神谷町駅(3番出口)から徒歩3分の賃貸オフィスです。1990年竣工、地上16階・地下1階建の基準階面積約230坪の大型オフィスビルです。地上16階建ての物件ということもあり、上層階からの眺望はとても良好です。エントランスホールやエレベーターホールはとても広々としており、開放感があります。ビル内の主な設備面は、床はOAフロア、男女別トイレ、エレベーターは3基設置されています。また周辺にはコンビニや飲食店などが複数あるため、ランチも楽しめるでしょう。UD神谷町ビルは神谷町駅(3番出口)の他に虎ノ門ヒルズ駅(A1番出口)徒歩8分、御成門駅(A5番出口)徒歩8分で利用も可能です。

