2階は現在募集がありません
MSビル 2階
物件概要
MSビルのテナント募集中区画
現在、空室がございません。
アクセス
MSビルの物件情報
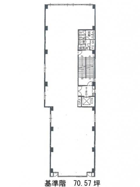
MSビル(港区三田)は麻布十番駅(3番出口)から徒歩5分の賃貸オフィスです。外観は全体的にシックな色合いをしており、スタイリッシュな印象があります。エントランスホールやエレベーターホールは清潔感があり、落ち着いた空間となっております。室内は、基準階が約70坪あり、ほぼ長方形の形をしているため、比較的レイアウトは組みやすいでしょう。ビル内のトイレは男女別となっており、駐車場設備も備えられているため、とても便利です。また周辺にはコンビニや飲食店、郵便局などがあるため、利便性が高いです。MSビルは麻布十番駅(3番出口)の他に赤羽橋駅(中之橋口)徒歩6分、芝公園駅(A2番出口)徒歩12分で利用も可能です。

