2階 202は現在募集がありません
クイーンハイツ三田 2階 202
物件概要
クイーンハイツ三田のテナント募集中区画
現在、空室がございません。
アクセス
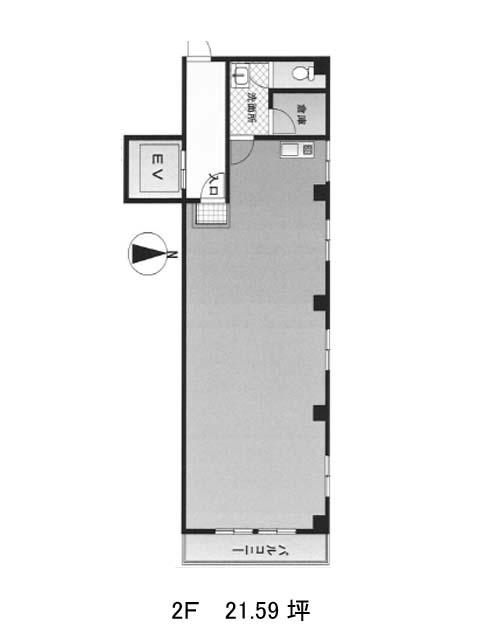
クイーンハイツ三田の物件情報
クイーンハイツ三田(港区三田)は三田駅(A3番出口)から徒歩6分の賃貸オフィスです。クイーンハイツ三田は三田駅(A3番出口)の他に田町駅(三田口)徒歩7分、白金高輪駅(2番出口)徒歩13分で利用も可能です。

