8階は現在募集がありません
森伝ビル 8階
物件概要
森伝ビルのテナント募集中区画
現在、空室がございません。
アクセス
森伝ビルの物件情報
森伝ビル(港区三田)は泉岳寺駅(A4番出口)から徒歩2分の賃貸オフィスです。三田エリア、大通り沿いに構えるこちらのオフィスビルは、柔らかなベージュトーンのファサード。街並みにやさしく溶け込みながらも、しっかりとした存在感を放っています。1階にはコンビニが入っており、ランチ時やちょっとした買い物の際にとても便利。ビルの目印としても機能してくれそうです。
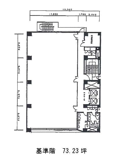
基準階は約73坪。長方形の無柱空間かつOAフロア仕様により、フレキシブルなレイアウトが実現可能です。水回りは室外に配置されており、執務スペースをすっきり保ちたい企業にはうれしい構造。機械警備によるセキュリティ体制や駐車場の整備もあり、日常の安心感もしっかりとカバーされています。駅からのアクセス性に加えて、働きやすさや使い勝手にも配慮された、バランスのよい一棟です。森伝ビルは泉岳寺駅(A4番出口)の他に高輪ゲートウェイ駅(出口)徒歩10分、三田駅(A1番出口)徒歩10分で利用も可能です。

