4階は現在募集がありません

三田3丁目MTビル 4階

前の写真 次の写真

物件概要

物件番号

125-00095-140

物件名

三田3丁目MTビル

所在地

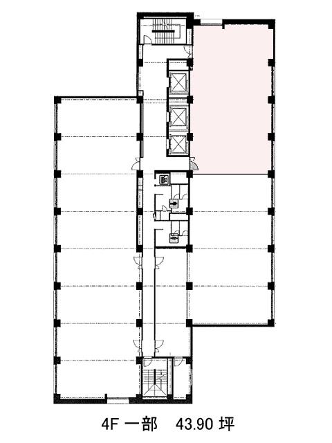
面積

43.90坪

賃料(共益費含)


入居日

募集終了

保証金

礼金

更新料

償却費

竣工

1982年7月

構造

SRC

規模

地上12階

トイレ

男女別

空調

個別空調

エレベーター

セキュリティ

駐車場

耐震

耐震補強済み

基準階天井高

2450mm

空室延床面積

最寄駅

情報更新日

2024/05/01

三田3丁目MTビルのテナント募集中区画

現在、空室がございません。

アクセス

三田3丁目MTビルの物件情報

三田3丁目MTビル(港区三田)は三田駅(A1番出口)から徒歩5分の賃貸オフィスです。
1982年竣工で、地上12階建ての物件ということもあり、上層階からの眺望は良好です。外観は全体的に白を基調とした色合いで、建物自体が大きいため存在感があります。エントランスホールやエレベーターホールは清潔感があり、落ち着いた空間となっております。ビル内にはOAフロアが備えられており、トイレは男女別です。駐車場を完備しているため、車の利用がしやすい環境となっております。また周辺には、コンビニや飲食店などがあるため、ランチも楽しめるでしょう。
三田3丁目MTビルは三田駅(A1番出口)の他に田町駅(三田口)徒歩7分、泉岳寺駅(A4番出口)徒歩8分で利用も可能です。

近隣のエリア・駅から探す