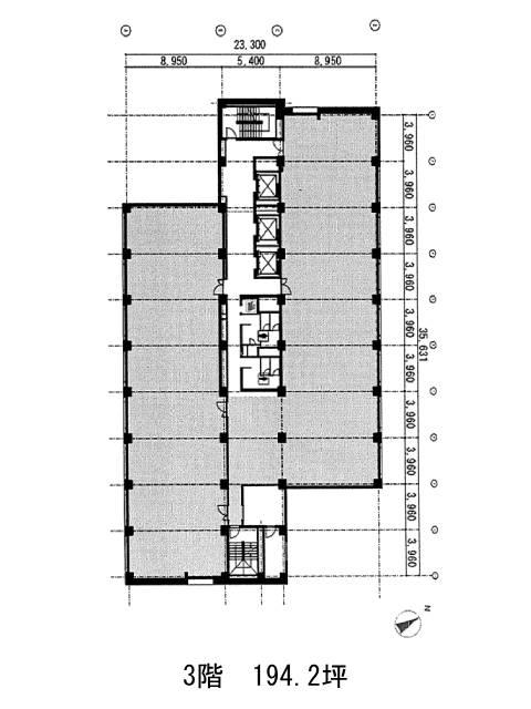
3階は現在募集がありません
三田3丁目MTビル 3階
物件概要
三田3丁目MTビルのテナント募集中区画
現在、空室がございません。
アクセス
三田3丁目MTビルの物件情報
三田3丁目MTビル(港区三田)は三田駅(A1番出口)から徒歩5分の賃貸オフィスです。1982年竣工で、地上12階建ての物件ということもあり、上層階からの眺望は良好です。外観は全体的に白を基調とした色合いで、建物自体が大きいため存在感があります。エントランスホールやエレベーターホールは清潔感があり、落ち着いた空間となっております。ビル内にはOAフロアが備えられており、トイレは男女別です。駐車場を完備しているため、車の利用がしやすい環境となっております。また周辺には、コンビニや飲食店などがあるため、ランチも楽しめるでしょう。三田3丁目MTビルは三田駅(A1番出口)の他に田町駅(三田口)徒歩7分、泉岳寺駅(A4番出口)徒歩8分で利用も可能です。

