4階は現在募集がありません
泉田町ビル 4階
物件概要
泉田町ビルのテナント募集中区画
現在、空室がございません。
アクセス
泉田町ビルの物件情報
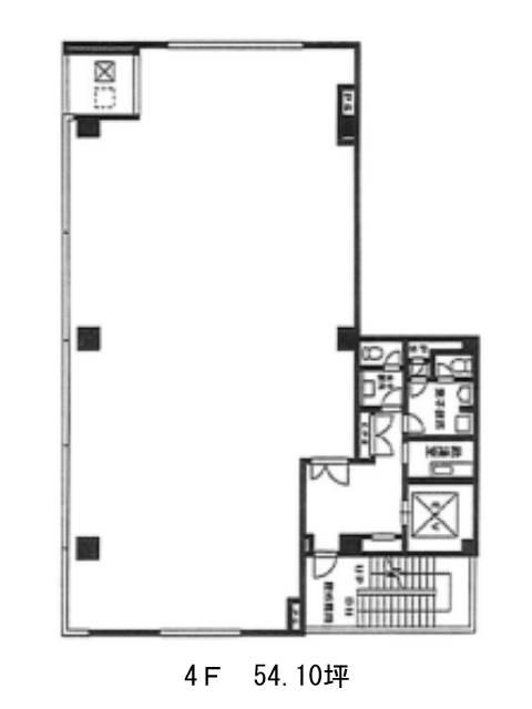
泉田町ビル(港区芝)は三田駅(A3番出口)から徒歩2分の賃貸オフィスです。1986年竣工。外観は全体的にグレーを基調とした色合いで、シンプルなデザインとなっております。エントランスホールやエレベーターホールは清潔感があり、落ち着いた空間となっております。エレベーターは1基設置。基準階は約54坪あり、室内はほぼ長方形、余計な柱が無いため、比較的レイアウトは組みやすいでしょう。ビル内のトイレは男女別となっており、耐震性も新耐震基準であるため、安心です。また周辺にはコンビニや飲食店、郵便局などがあるため、利便性が高いです。泉田町ビルは三田駅(A3番出口)の他に田町駅(三田口)徒歩3分、芝公園駅(A1番出口)徒歩10分で利用も可能です。

