8階は現在募集がありません
Mita SーGarden 8階
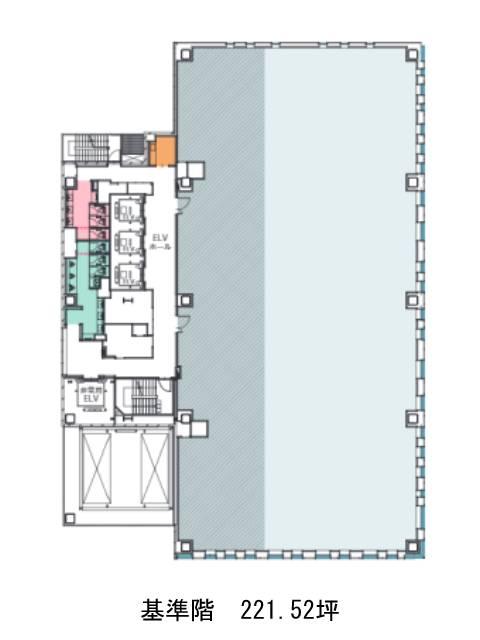
物件概要
Mita SーGardenのテナント募集中区画
現在、空室がございません。
アクセス
Mita SーGardenの物件情報
Mita SーGarden(港区芝)は三田駅(A3番出口)から徒歩2分の賃貸オフィスです。2022年11月竣工の新築ビルです。地上11階建、様々なサイズのガラス窓を使用しデザイン性の高い外観をしています。角地に建ち、視認性が高いでしょう。EV3基・駐車場・男女別トイレ・OAフロアといった設備仕様で空調は個別空調システムです。省エネ・環境配慮型ビルで、最新の設備を整えております。緑豊かな屋外スペースもあり休憩時にご利用いただけます。Mita SーGardenは三田駅(A3番出口)の他に田町駅(三田口)徒歩3分、芝公園駅(A1番出口)徒歩10分で利用も可能です。

