2階は現在募集がありません
1フロア募集区画あり

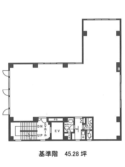
シントクビル 2階

前の写真 次の写真

物件概要

物件番号

126-00084-10

物件名

シントクビル

所在地

面積

45.28坪

賃料(共益費含)


入居日

募集終了

保証金

礼金

更新料

償却費

竣工

1993年10月

構造

RC

規模

地上5階

トイレ

男女別

空調

個別空調

エレベーター

セキュリティ

駐車場

耐震

新耐震基準

基準階天井高

2450mm

空室延床面積

45.28坪

最寄駅

情報更新日

2025/12/18

シントクビルのテナント募集中区画

階数 面積 賃料(共益費含む) 保証金 入居可能日 検討リスト 詳細
3 45.28坪 697,312円/月(15,400円/坪) 380万円 2026年4月上旬
…新着物件

アクセス

シントクビルの物件情報

シントクビル(港区芝)は赤羽橋駅(赤羽橋口)から徒歩4分の賃貸オフィスです。
シントクビルは赤羽橋駅(赤羽橋口)の他に芝公園駅(A2番出口)徒歩5分、三田駅(A8番出口)徒歩10分で利用も可能です。

近隣のエリア・駅から探す