シントクビル 3階
物件概要
物件番号
126-00084-20物件名
シントクビル所在地
- 東京都港区芝3-14-6
- アクセスマップ
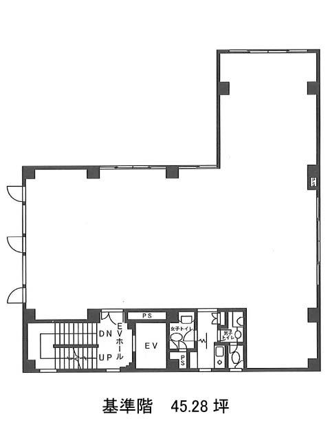
面積
45.28坪賃料(共益費含)
月額697,312円(15,400円/坪)
入居日
2026年4月上旬保証金
3,803,520円礼金
なし更新料
新1ケ月償却費
1ケ月竣工
1993年10月構造
RC規模
地上5階トイレ
男女別空調
個別空調エレベーター
有セキュリティ
駐車場
無耐震
新耐震基準基準階天井高
2450mm空室延床面積
45.28坪情報更新日
2025/12/18シントクビルのテナント募集中区画
| 階数 | 面積 | 賃料(共益費含む) | 保証金 | 入居可能日 | 検討リスト | 詳細 |
|---|---|---|---|---|---|---|
| 3 | 45.28坪 | 697,312円/月(15,400円/坪) | 380万円 | 2026年4月上旬 |
…新着物件
アクセス
シントクビルの物件情報
シントクビル(港区芝)は赤羽橋駅(赤羽橋口)から徒歩4分の賃貸オフィスです。シントクビルは赤羽橋駅(赤羽橋口)の他に芝公園駅(A2番出口)徒歩5分、三田駅(A8番出口)徒歩10分で利用も可能です。

