2階は現在募集がありません
田町イーストウィング 2階
物件概要
田町イーストウィングのテナント募集中区画
現在、空室がございません。
アクセス
田町イーストウィングの物件情報
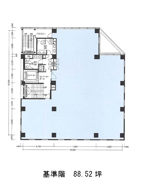
田町イーストウィング(港区芝浦)は田町駅(芝浦口)から徒歩3分の賃貸オフィスです。2003年竣工、地上6階建のビルです。白い外壁に正方形の窓が等間隔に並び、デザイン性のある外観をしています。1階にカフェがあり、ご案内の際目印となるでしょう。設備仕様としてEV・貸室外の男女別トイレ・非常階段2箇所・バルコニー・給湯室・OAフロア・個別空調があり、セキュリティとして機械警備を導入しています。二面に窓があり、十分な採光がとれるでしょう。近隣はキャンパスやオフィスビル、ホテルなどが建ち活気あふれるエリアとなります。田町イーストウィングは田町駅(芝浦口)の他に三田駅(A4番出口)徒歩6分、芝浦ふ頭駅(西口)徒歩14分で利用も可能です。

