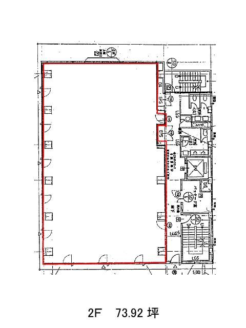
2階は現在募集がありません
芝浦SECビル 2階
物件概要
芝浦SECビルのテナント募集中区画
現在、空室がございません。
アクセス
芝浦SECビルの物件情報
芝浦SECビル(港区芝浦)は田町駅(芝浦口)から徒歩4分の賃貸オフィスです。1989年竣工、新耐震基準に適合している地上6階地下1階建のビルです。間取りは長方形のすっきりした形状でオフィス家具のレイアウトがしやすいでしょう。南東側に大きく並んだガラス窓からの採光が期待できます。EV・貸室外の男女別トイレ・セントラル空調・OAフロアといった設備仕様をしています。機械警備を導入し、安心のセキュリティ。1階にコンビニが入り、昼食時にご利用頂けるでしょう。芝浦SECビルは田町駅(芝浦口)の他に三田駅(A4番出口)徒歩7分、芝浦ふ頭駅(西口)徒歩13分で利用も可能です。

