5階は現在募集がありません
バリュー芝浦ビルヂング 5階
物件概要
バリュー芝浦ビルヂングのテナント募集中区画
現在、空室がございません。
アクセス
バリュー芝浦ビルヂングの物件情報
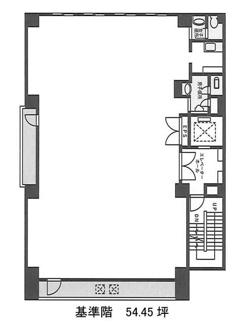
バリュー芝浦ビルヂング(港区芝浦)は田町駅(芝浦口)から徒歩6分の賃貸オフィスです。1988年竣工。外観は全体的にシックな色合いを基調としており、シンプルなデザインとなっております。エントランスホールやエレベーターホールは落ち着いた空間となっております。室内は、基準階が約54坪あり、長方形の整形オフィスのため、効率の良いレイアウトが組めそうです。ビル内のトイレは男女別となっており、駐車場も完備してあるため、車の利用がしやすい環境となっております。また周辺にはコンビニや飲食店などがあるため、ランチも楽しめるでしょう。バリュー芝浦ビルヂングは田町駅(芝浦口)の他に三田駅(A4番出口)徒歩9分、芝浦ふ頭駅(西口)徒歩14分で利用も可能です。

