5階は現在募集がありません
矢島ビル 5階
物件概要
矢島ビルのテナント募集中区画
現在、空室がございません。
アクセス
矢島ビルの物件情報
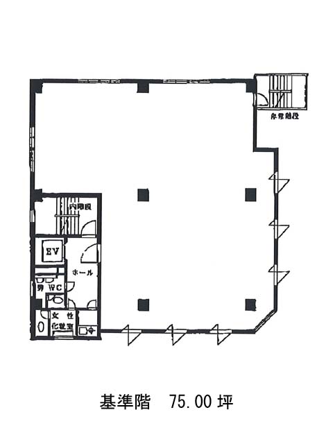
矢島ビル(港区芝浦)は田町駅(芝浦口)から徒歩4分の賃貸オフィスです。1986年竣工。外観は全体的にガラス張りになっており、特徴的なデザインとなっております。エントランスホールやエレベーターホールはとても落ち着いた空間となっております。基準階坪数は約75坪。ビル内にはOAフロアが備えられており、トイレは男女別となっております。耐震性も新耐震基準であるため、安心です。周辺にはコンビニや飲食店、銀行などがあるため、利便性が高いです。また、ビルの1階にもコンビニが入っているため、休憩時などに活用しやすいでしょう。矢島ビルは田町駅(芝浦口)の他に三田駅(A4番出口)徒歩7分、芝浦ふ頭駅(西口)徒歩13分で利用も可能です。

