2階 201は現在募集がありません
芝浦ワンハンドレッドビル 2階 201
物件概要
芝浦ワンハンドレッドビルのテナント募集中区画
現在、空室がございません。
アクセス
芝浦ワンハンドレッドビルの物件情報
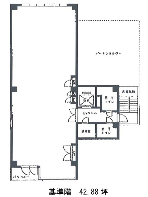
芝浦ワンハンドレッドビル(港区芝浦)は田町駅(芝浦口)から徒歩6分の賃貸オフィスです。基準階は約42坪です。外観はシルバーのパネル張りと、ブルーの窓ガラスの組み合わせが特徴的なデザインとなっております。室内は長方形の整形オフィスのため、効率の良いレイアウトが組めそうです。ビル内にはOAフロアが備えられており、個別空調も完備されていて、トイレも男女別となっているため設備面は充実しています。エレベーターは1基設置されており、駐車場も完備しているため、社用車を使う場合も便利です。また周辺にはコンビニや飲食店などが複数あるため、ランチが楽しめるでしょう。芝浦ワンハンドレッドビルは田町駅(芝浦口)の他に三田駅(A1番出口)徒歩9分、芝浦ふ頭駅(西口)徒歩15分で利用も可能です。

