3階は現在募集がありません
芝浦MYビル 3階
物件概要
芝浦MYビルのテナント募集中区画
現在、空室がございません。
アクセス
芝浦MYビルの物件情報
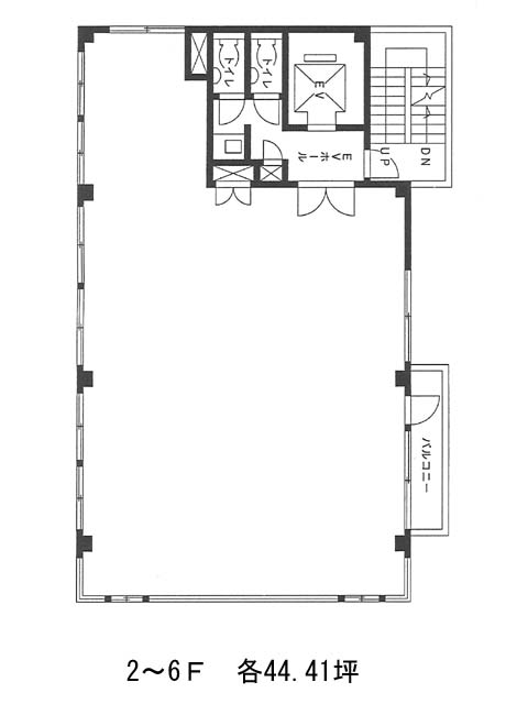
芝浦MYビル(港区芝浦)は田町駅(芝浦口)から徒歩7分の賃貸オフィスです。1993年竣工、地上7階建のビルです。貸室は30~40坪台と小規模なオフィスをお探しの方によいでしょう。間取りは、無柱空間のすっきりした形状でレイアウトの自由度が高まります。バルコニーがありリフレッシュスペースとしてご利用頂けるでしょう。EV1基・駐車場・執務室外の男女別トイレ・給湯スペース・OAフロアといった設備仕様で、空調は個別空調を導入しています。周辺はオフィスビル・ビジネスホテル等が建つエリアです。芝浦MYビルは田町駅(芝浦口)の他に三田駅(A1番出口)徒歩9分、泉岳寺駅(A4番出口)徒歩14分で利用も可能です。

