4階は現在募集がありません
1フロア募集区画あり

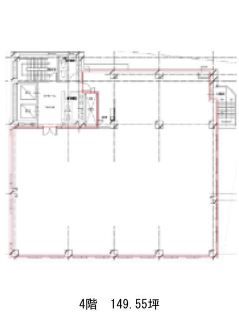
芝公園大門通プラザビル 4階

前の写真 次の写真

物件概要

物件番号

128-00024-30

物件名

芝公園大門通プラザビル

所在地

面積

149.55坪

賃料(共益費含)


入居日

募集終了

保証金

礼金

更新料

償却費

竣工

1991年3月

構造

SRC

規模

地上9階/地下1階

トイレ

男女別

空調

個別空調

エレベーター

セキュリティ

駐車場

耐震

新耐震基準

基準階天井高

2600mm

空室延床面積

149.55坪

最寄駅

情報更新日

2025/11/25

芝公園大門通プラザビルのテナント募集中区画

階数 面積 賃料(共益費含む) 保証金 入居可能日 検討リスト 詳細
5 149.55坪 応相談(応相談) 応相談 2026年4月下旬
…新着物件

アクセス

芝公園大門通プラザビルの物件情報

芝公園大門通プラザビル(港区芝公園)は大門駅(A6番出口)から徒歩3分の賃貸オフィスです。
外観は全体的にグレーを基調とした色合いで、とてもシンプルなデザインとなっております。また周辺にはコンビニや飲食店が複数あり、建物内に郵便局もあるため、とても利便性が高いです。OAフロア、個別空調完備、トイレも男女別となっているため設備面は充実しております。駐車場も完備してあるため、社用車を使う場合も便利でしょう。そしてセキュリティは機械警備を導入していて、耐震性も新耐震基準であるため、安心です。
芝公園大門通プラザビルは大門駅(A6番出口)の他に御成門駅(A2番出口)徒歩5分、芝公園駅(A3番出口)徒歩6分で利用も可能です。

近隣のエリア・駅から探す