芝公園大門通プラザビル 5階
物件概要
物件番号
128-00024-50物件名
芝公園大門通プラザビル所在地
- 東京都港区芝公園1-8-12
- アクセスマップ
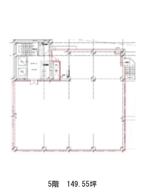
面積
149.55坪賃料(共益費含)
:応相談応相談
入居日
2026年4月下旬保証金
応相談礼金
なし更新料
なし償却費
なし竣工
1991年3月構造
SRC規模
地上9階/地下1階トイレ
男女別空調
個別空調エレベーター
有セキュリティ
有駐車場
有耐震
新耐震基準基準階天井高
2600mm空室延床面積
149.55坪情報更新日
2025/12/12芝公園大門通プラザビルのテナント募集中区画
| 階数 | 面積 | 賃料(共益費含む) | 保証金 | 入居可能日 | 検討リスト | 詳細 |
|---|---|---|---|---|---|---|
| 5 | 149.55坪 | 応相談(応相談) | 応相談 | 2026年4月下旬 |
…新着物件
アクセス
芝公園大門通プラザビルの物件情報
芝公園大門通プラザビル(港区芝公園)は大門駅(A6番出口)から徒歩3分の賃貸オフィスです。外観は全体的にグレーを基調とした色合いで、とてもシンプルなデザインとなっております。また周辺にはコンビニや飲食店が複数あり、建物内に郵便局もあるため、とても利便性が高いです。OAフロア、個別空調完備、トイレも男女別となっているため設備面は充実しております。駐車場も完備してあるため、社用車を使う場合も便利でしょう。そしてセキュリティは機械警備を導入していて、耐震性も新耐震基準であるため、安心です。芝公園大門通プラザビルは大門駅(A6番出口)の他に御成門駅(A2番出口)徒歩5分、芝公園駅(A3番出口)徒歩6分で利用も可能です。

