代市ビル 4階
物件概要
物件番号
130-00100-50物件名
代市ビル所在地
- 東京都港区新橋5-8-3
- アクセスマップ
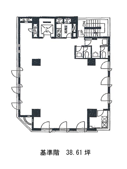
面積
38.61坪賃料(共益費含)
月額637,065円(16,500円/坪)
入居日
即保証金
4,633,200円礼金
なし更新料
新1ケ月償却費
2ケ月竣工
1991年9月構造
SRC規模
地上9階/地下1階トイレ
男女別空調
個別空調エレベーター
有セキュリティ
有駐車場
無耐震
新耐震基準基準階天井高
空室延床面積
38.61坪情報更新日
2025/11/26代市ビルのテナント募集中区画
| 階数 | 面積 | 賃料(共益費含む) | 保証金 | 入居可能日 | 検討リスト | 詳細 |
|---|---|---|---|---|---|---|
| 4 | 38.61坪 | 637,065円/月(16,500円/坪) | 463万円 | 即 |
…新着物件
アクセス
代市ビルの物件情報
代市ビル(港区新橋)は新橋駅(A1番出口)から徒歩6分の賃貸オフィスです。解放感溢れる角地に佇む地上9階建てのオフィスビルです。外観はグレー・イエロー・グリーンの珍しい色の組み合わせで構成されています。
基準の貸室は40坪弱の規模。室内には柱がありますので、内見の際などにご確認が必要かと思います。エレベーターからはダイレクトインの仕様で、男女別トイレと給湯室の水回りはそれぞれ個室として室内に設置されています。セキュリティは機械警備を採用済み。
ビル周辺は比較的落ち着いた環境です。ひとたび最寄りの新橋駅方面に向かうと飲食店が充実しています。代市ビルは新橋駅(A1番出口)の他に汐留駅(8番出口)徒歩7分、御成門駅(A4番出口)徒歩8分で利用も可能です。

