7階は現在募集がありません
1フロア募集区画あり

代市ビル 7階

前の写真 次の写真

物件概要

物件番号

130-00100-70

物件名

代市ビル

所在地

面積

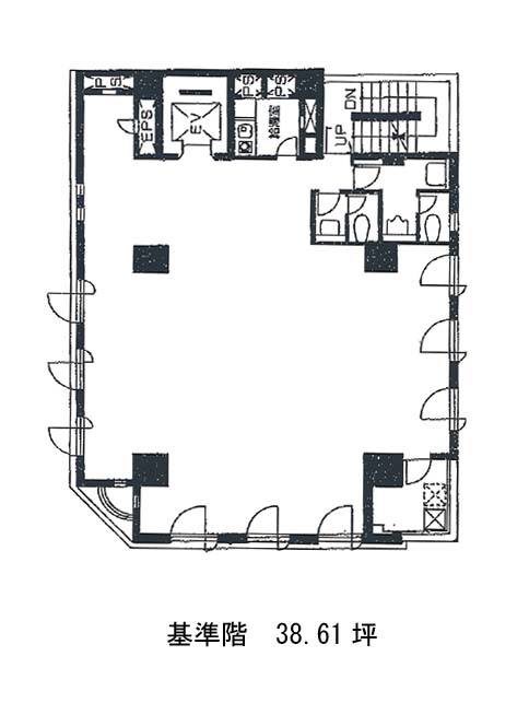
38.61坪

賃料(共益費含)


入居日

募集終了

保証金

礼金

更新料

償却費

竣工

1991年9月

構造

SRC

規模

地上9階/地下1階

トイレ

男女別

空調

個別空調

エレベーター

セキュリティ

駐車場

耐震

新耐震基準

基準階天井高

空室延床面積

38.61坪

最寄駅

情報更新日

2025/11/26

代市ビルのテナント募集中区画

階数 面積 賃料(共益費含む) 保証金 入居可能日 検討リスト 詳細
4 38.61坪 637,065円/月(16,500円/坪) 463万円
…新着物件

アクセス

代市ビルの物件情報

代市ビル(港区新橋)は新橋駅(A1番出口)から徒歩6分の賃貸オフィスです。
解放感溢れる角地に佇む地上9階建てのオフィスビルです。外観はグレー・イエロー・グリーンの珍しい色の組み合わせで構成されています。
基準の貸室は40坪弱の規模。室内には柱がありますので、内見の際などにご確認が必要かと思います。エレベーターからはダイレクトインの仕様で、男女別トイレと給湯室の水回りはそれぞれ個室として室内に設置されています。セキュリティは機械警備を採用済み。
ビル周辺は比較的落ち着いた環境です。ひとたび最寄りの新橋駅方面に向かうと飲食店が充実しています。
代市ビルは新橋駅(A1番出口)の他に汐留駅(8番出口)徒歩7分、御成門駅(A4番出口)徒歩8分で利用も可能です。

近隣のエリア・駅から探す