1階は現在募集がありません
赤坂ふく源ビル 1階
物件概要
物件番号
133-00010-10物件名
赤坂ふく源ビル所在地
- 東京都港区赤坂2-15-16
- アクセスマップ
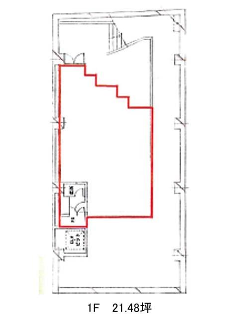
面積
21.48坪賃料(共益費含)
−入居日
募集終了保証金
−礼金
−更新料
−償却費
−竣工
1988年9月構造
SRC規模
地上8階/地下1階トイレ
男女共用空調
個別空調エレベーター
有セキュリティ
有駐車場
無耐震
新耐震基準基準階天井高
2800(1F3300)mm空室延床面積
−情報更新日
2024/10/09赤坂ふく源ビルのテナント募集中区画
現在、空室がございません。
アクセス
赤坂ふく源ビルの物件情報
赤坂ふく源ビル(港区赤坂)は赤坂駅(2番出口)から徒歩3分の賃貸オフィスです。1988年竣工地上8階地下1階のビルです。ダークな色調のタイルで重厚感がある外観をしております。長方形の間取りで、共用部が1箇所に集中しており使い勝手がよいでしょう。EV1基・2008年にリニューアルされた個別空調・給湯室といった設備を揃えております。配線の自由度が高まるOAフロアを採用しております。機械警備・有人警備と安心のセキュリティを備えております。周辺は和食料理屋が充実しており、接待等便利にご利用頂けるでしょう。赤坂ふく源ビルは赤坂駅(2番出口)の他に溜池山王駅(10番出口)徒歩6分、国会議事堂前駅(5番出口)徒歩7分で利用も可能です。

