6階は現在募集がありません
赤坂ふく源ビル 6階
物件概要
赤坂ふく源ビルのテナント募集中区画
現在、空室がございません。
アクセス
赤坂ふく源ビルの物件情報
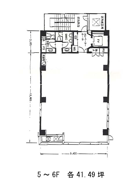
赤坂ふく源ビル(港区赤坂)は赤坂駅(2番出口)から徒歩3分の賃貸オフィスです。1988年竣工地上8階地下1階のビルです。ダークな色調のタイルで重厚感がある外観をしております。長方形の間取りで、共用部が1箇所に集中しており使い勝手がよいでしょう。EV1基・2008年にリニューアルされた個別空調・給湯室といった設備を揃えております。配線の自由度が高まるOAフロアを採用しております。機械警備・有人警備と安心のセキュリティを備えております。周辺は和食料理屋が充実しており、接待等便利にご利用頂けるでしょう。赤坂ふく源ビルは赤坂駅(2番出口)の他に溜池山王駅(10番出口)徒歩6分、国会議事堂前駅(5番出口)徒歩7分で利用も可能です。

