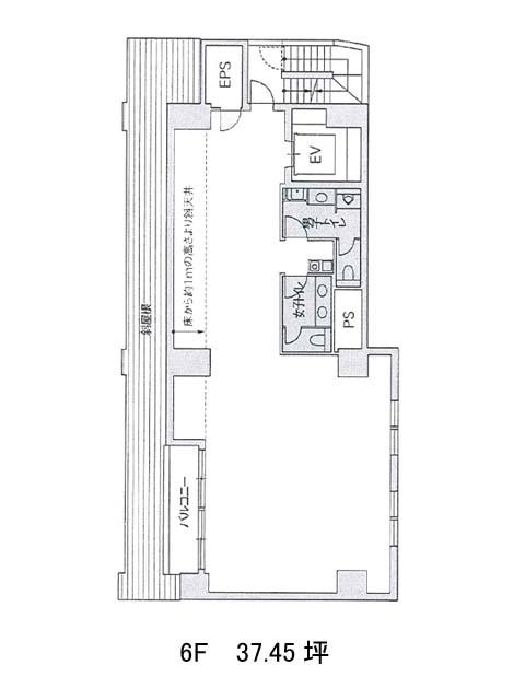
6階は現在募集がありません
赤坂2丁目ビル 6階
物件概要
赤坂2丁目ビルのテナント募集中区画
現在、空室がございません。
アクセス
赤坂2丁目ビルの物件情報
赤坂二丁目ビル(港区赤坂)は溜池山王駅(11番出口)から徒歩2分の賃貸オフィスです。赤坂二丁目ビルは溜池山王駅(11番出口)の他に赤坂駅(2番出口)徒歩6分、国会議事堂前駅(5番出口)徒歩6分で利用も可能です。

